Details
Ryder Close, Hemel Hempstead, HP3
£525,000
(Sold Subject To Contract)
Description
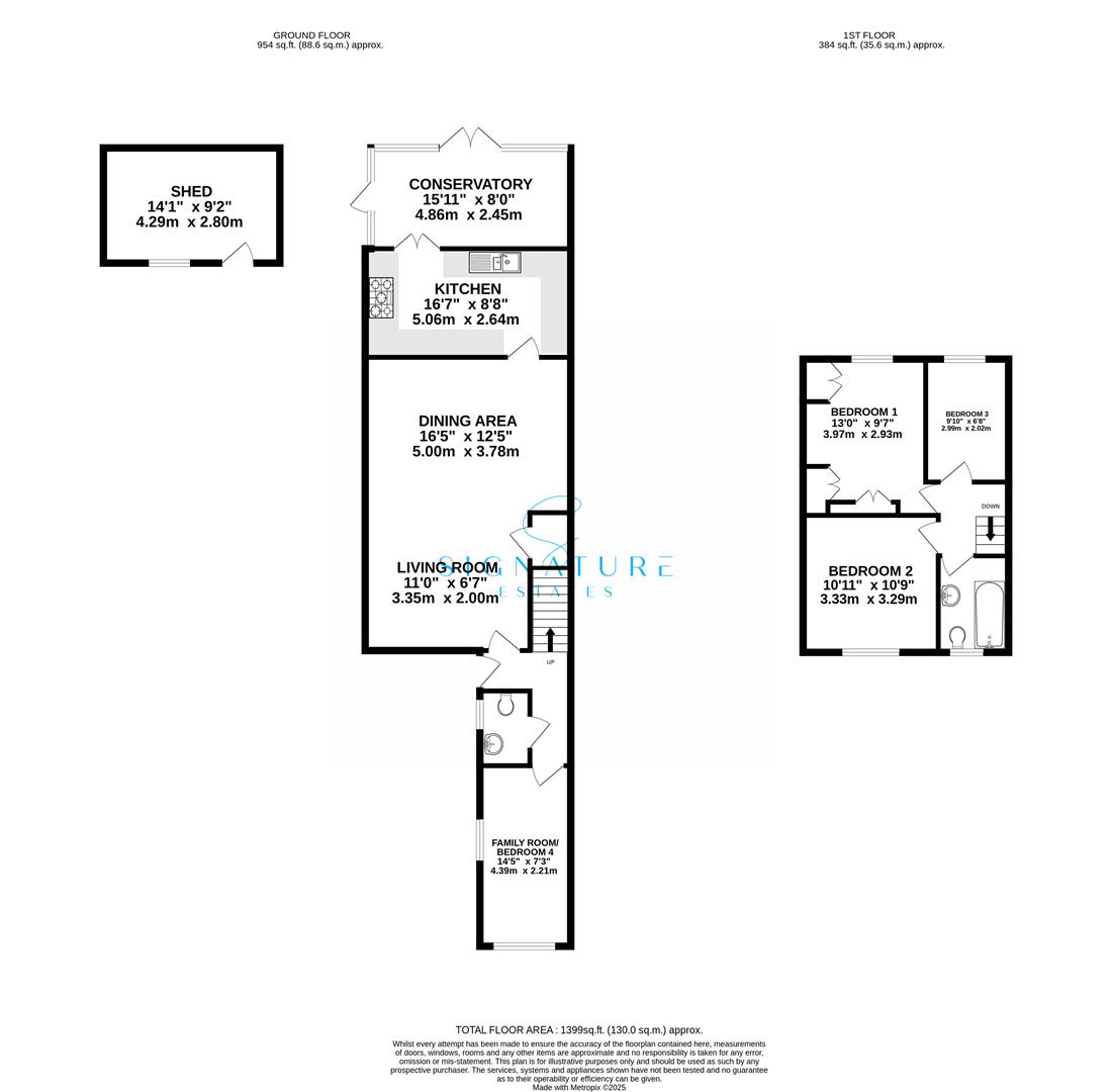
Tucked away on a peaceful residential road, this beautifully cared-for three-bedroom semi-detached home enjoys an enviable position within walking distance of the village and local school, blending comfort, style, and practicality in equal measure..The property features a large, bright reception room, perfect for family living and entertaining, along with a good-sized kitchen and a conservatory overlooking the garden — ideal for relaxing or enjoying the natural light all year round.The converted garage provides an additional flexible room, perfect as a home office, guest bedroom, or playroom, while still retaining useful storage space in the former garage area. Upstairs, there are two generous double bedrooms and a comfortable single bedroom, offering plenty of room for families or guests.Outside, the home enjoys a tidy garden and a storage shed, adding further practicality.This is a well-maintained home in a desirable, family-friendly area, ready to move into and enjoy.
External
Entrance Hall
W/C
Office
Lounge/Diner
Kitchen
Conservatory
First Floor
Landing
Bedroom One
Bedroom Two
Bedroom Three
Family Bathroom
Rear Garden
Viewing
Please contact us on 01442976161 if you wish to arrange a viewing appointment for this property, or require further information.
Energy Performance Certificate
Click here to view the Energy Efficiency Rating and Environmental Impact Rating for this property.
Disclaimer
Signature Estates - WD17 endeavour to maintain accurate depictions of properties in Virtual Tours, Floor Plans and descriptions, however, these are intended only as a guide and purchasers must satisfy themselves by personal inspection.
Tucked away on a peaceful residential road, this beautifully cared-for three-bedroom semi-detached home enjoys an enviable position within walking distance of the village and local school, blending comfort, style, and practicality in equal measure..The property features a large, bright reception room, perfect for family living and entertaining, along with a good-sized kitchen and a conservatory overlooking the garden — ideal for relaxing or enjoying the natural light all year round.The converted garage provides an additional flexible room, perfect as a home office, guest bedroom, or playroom, while still retaining useful storage space in the former garage area. Upstairs, there are two generous double bedrooms and a comfortable single bedroom, offering plenty of room for families or guests.Outside, the home enjoys a tidy garden and a storage shed, adding further practicality.This is a well-maintained home in a desirable, family-friendly area, ready to move into and enjoy.
External
Entrance Hall
W/C
Office
Lounge/Diner
Kitchen
Conservatory
First Floor
Landing
Bedroom One
Bedroom Two
Bedroom Three
Family Bathroom
Rear Garden
Viewing
Please contact us on 01442976161 if you wish to arrange a viewing appointment for this property, or require further information.
Energy Performance Certificate
Click here to view the Energy Efficiency Rating and Environmental Impact Rating for this property.
Disclaimer
Signature Estates - WD17 endeavour to maintain accurate depictions of properties in Virtual Tours, Floor Plans and descriptions, however, these are intended only as a guide and purchasers must satisfy themselves by personal inspection.
Features
- Three Bedroom Semi Detached
- Large, Bright Reception Room
- Good Size Kitchen
- Conservatory Adding More Living Space
- Converted Garage
- Neatly Presented Garden With Storage
- Walking DIstance To The Village
- Viewing Highly Advised!
Share
WorkWith Us
Moving home can be one of the most emotional and stress inducing transactions some of us will ever make. So why work with us? it is imperative that you choose the agent that is right for you, Signature Estates are renowned within our local communities and surrounding areas for providing a hands-on approach to each individual property transaction. Whilst we are small enough to care and provide each client with individual attention, we are large enough to ensure we provide the full range of property services that our clients deserve.

