Details
Torbay Road, Harrow, HA2
Offers over £500,000
Description
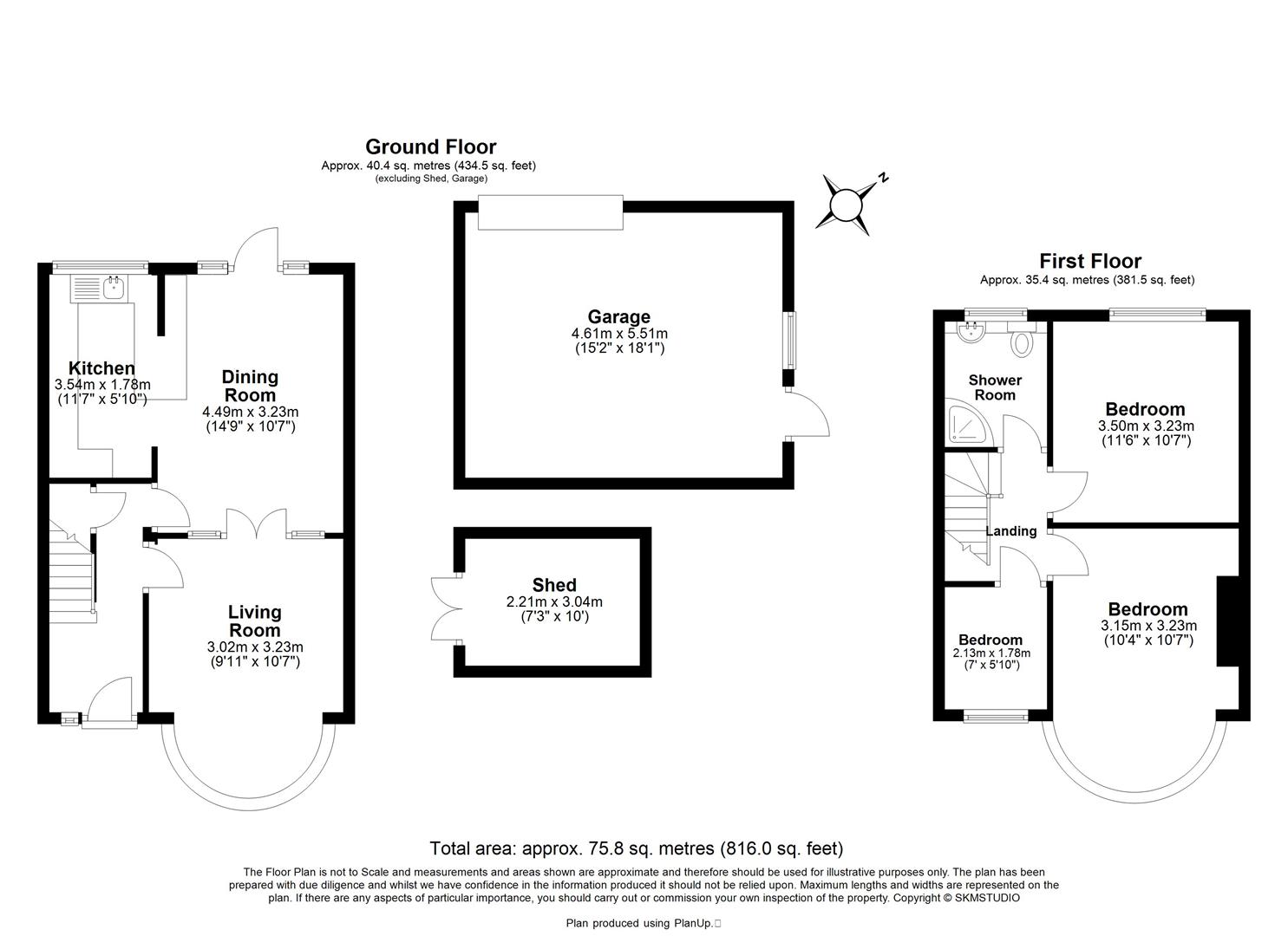
FOR SALE BY INFORMAL TENDER - ENDS MIDDAY - Monday 18th May 2026Signature Estate Agents are pleased to offer this three-bedroom chain free mid-terrace property, ideally located within walking distance of Rayners Lane High Street & Station (Metropolitan & Piccadilly Line), 0.2 miles away from Roxbourne Primary School and 0.6 miles away from Newton Farm Infant & Junior School.The home benefits from a sought-after location and includes two reception rooms and a new family bathroom, providing well-proportioned space for comfortable modern living.Requiring some re-decoration the property presents a fantastic opportunity to create a personalised home tailored to your own style and requirements. There is also potential to extend (subject to the necessary consents), allowing buyers to further enhance the accommodation in the future. The roof, & exterior render & bathroom are newly appointed so we consider some basic decoration would transform this home.Additional features include a large gated access rear garage and a driveway providing off-street parking for two vehicles, offering convenience for both residents and guests. Its central position provides easy access to local amenities, transport links, and schools, making it an excellent choice for first-time buyers.A great opportunity to add value and transform this property into a bespoke family home. Get in touch today to arrange a viewing and explore its full potential.
Lounge
Kitchen
Dining Area
Bedroom 1
Bedroom 2
Bathroom
Bedroom 3
Garage
Agents Note- Important**
Main Conditions Of Sale
The Freehold Interest of: 319 Torbay Road, Harrow Middlx HA2 9QD
Local Authority – Harrow
1. To be sold to the purchaser with vacant possession
2. Offers are invited based on a capital sum in pounds sterling. Bids must be a specific sum, not calculated by reference to any other bid, document or formula.
3. All bids must be submitted on the offer form.
4. If the offer is unconditional, the purchaser will be required to exchange contracts and pay 10% deposit within 28 days of being formally notified that their offer has been accepted. Completion is to take place within 14 days from the date of exchange .
5. The Signature Organisation Ltd may look to the successful purchaser for an introduction fee
of up to 2% + VAT, plus an opportunity to be retained as the selling agents for any subsequent refurbishment or new development
6. The sale will be subject to such conditions as the vendor's solicitors may deem to be necessary
7. A non refundable deposit of £2000 + VAT must be paid within 48 hours of being notified that you have been successful. This amount will be deducted from your final invoice.
Agent Note 2
- The property has a recently appointed roof and new exterior render
- Internally the property requires re-decoration.
- Property is chain free.
Viewing
Please contact us on 01923 262 666 if you wish to arrange a viewing appointment for this property, or require further information.
Energy Performance Certificate
Click here to view the Energy Efficiency Rating and Environmental Impact Rating for this property.
Disclaimer
Signature Estates - WD17 endeavour to maintain accurate depictions of properties in Virtual Tours, Floor Plans and descriptions, however, these are intended only as a guide and purchasers must satisfy themselves by personal inspection.
FOR SALE BY INFORMAL TENDER - ENDS MIDDAY - Monday 18th May 2026Signature Estate Agents are pleased to offer this three-bedroom chain free mid-terrace property, ideally located within walking distance of Rayners Lane High Street & Station (Metropolitan & Piccadilly Line), 0.2 miles away from Roxbourne Primary School and 0.6 miles away from Newton Farm Infant & Junior School.The home benefits from a sought-after location and includes two reception rooms and a new family bathroom, providing well-proportioned space for comfortable modern living.Requiring some re-decoration the property presents a fantastic opportunity to create a personalised home tailored to your own style and requirements. There is also potential to extend (subject to the necessary consents), allowing buyers to further enhance the accommodation in the future. The roof, & exterior render & bathroom are newly appointed so we consider some basic decoration would transform this home.Additional features include a large gated access rear garage and a driveway providing off-street parking for two vehicles, offering convenience for both residents and guests. Its central position provides easy access to local amenities, transport links, and schools, making it an excellent choice for first-time buyers.A great opportunity to add value and transform this property into a bespoke family home. Get in touch today to arrange a viewing and explore its full potential.
Lounge
Kitchen
Dining Area
Bedroom 1
Bedroom 2
Bathroom
Bedroom 3
Garage
Agents Note- Important**
Main Conditions Of Sale
The Freehold Interest of: 319 Torbay Road, Harrow Middlx HA2 9QD
Local Authority – Harrow
1. To be sold to the purchaser with vacant possession
2. Offers are invited based on a capital sum in pounds sterling. Bids must be a specific sum, not calculated by reference to any other bid, document or formula.
3. All bids must be submitted on the offer form.
4. If the offer is unconditional, the purchaser will be required to exchange contracts and pay 10% deposit within 28 days of being formally notified that their offer has been accepted. Completion is to take place within 14 days from the date of exchange .
5. The Signature Organisation Ltd may look to the successful purchaser for an introduction fee
of up to 2% + VAT, plus an opportunity to be retained as the selling agents for any subsequent refurbishment or new development
6. The sale will be subject to such conditions as the vendor's solicitors may deem to be necessary
7. A non refundable deposit of £2000 + VAT must be paid within 48 hours of being notified that you have been successful. This amount will be deducted from your final invoice.
Agent Note 2
- The property has a recently appointed roof and new exterior render
- Internally the property requires re-decoration.
- Property is chain free.
Viewing
Please contact us on 01923 262 666 if you wish to arrange a viewing appointment for this property, or require further information.
Energy Performance Certificate
Click here to view the Energy Efficiency Rating and Environmental Impact Rating for this property.
Disclaimer
Signature Estates - WD17 endeavour to maintain accurate depictions of properties in Virtual Tours, Floor Plans and descriptions, however, these are intended only as a guide and purchasers must satisfy themselves by personal inspection.
Features
- ** Chain Free**- Avalaible by Informal Tender
- Walking Distance to Rayners Lane Train Station (Metropolitan & Piccadilly Line).
- Three Bedrooms
- Two Reception Rooms
- Requires Some Re-decoration
- Includes Large Private Gated Garage
- Off Street Parking For Two Cars
- One Family Bathroom
- Potential To Extend (STPP)
- Located Close To Local Amenities, Schools And Transport Links
Share
WorkWith Us
Moving home can be one of the most emotional and stress inducing transactions some of us will ever make. So why work with us? it is imperative that you choose the agent that is right for you, Signature Estates are renowned within our local communities and surrounding areas for providing a hands-on approach to each individual property transaction. Whilst we are small enough to care and provide each client with individual attention, we are large enough to ensure we provide the full range of property services that our clients deserve.

