Details
Rosehill Gardens, Abbots Langley, WD5
Guide price £480,000
Description
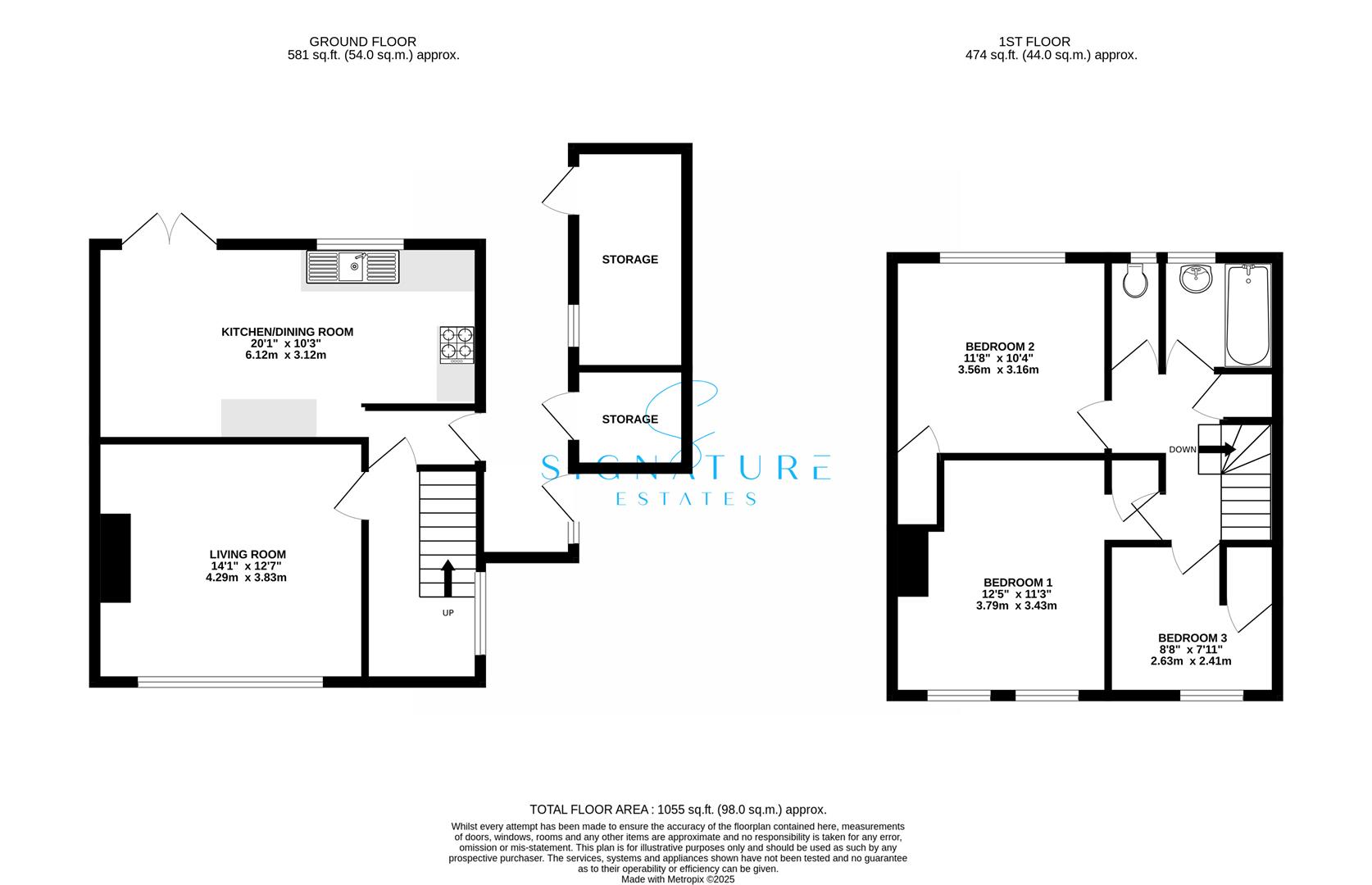
Located in the popular Rosehill Gardens area of Abbots Langley, this three-bedroom house offers a solid opportunity for buyers looking to personalise and update a well-positioned home. With a spacious layout and appealing footprint, the property lends itself to a range of improvement options, depending on individual taste and requirements.The generous reception room provides a flexible living space that could suit various configurations, including the potential for open-plan living. While the property could benefit from some updating, it offers a practical starting point for those interested in carrying out cosmetic or more extensive improvements.A standout feature of the home is its exceptionally large corner plot garden, offering an impressive amount of outdoor space. This provides excellent potential for landscaping, family use, or future development. Subject to the necessary planning consents, there may also be scope to extend the property to increase the living space.Offered with no upper chain, this home provides a straightforward route to ownership. Whether you're a family, professional couple, or investor looking for a property with room to grow, this is a promising opportunity in a well-regarded location.
Agent Notes
In Need Of Some Modernisation and Re-Decoration- Outstanding Corner Plot
kitchen
Front view
Garden
Viewing
Please contact us on 01923 262 666 if you wish to arrange a viewing appointment for this property, or require further information.
Energy Performance Certificate
Click here to view the Energy Efficiency Rating and Environmental Impact Rating for this property.
Disclaimer
Signature Estates - WD17 endeavour to maintain accurate depictions of properties in Virtual Tours, Floor Plans and descriptions, however, these are intended only as a guide and purchasers must satisfy themselves by personal inspection.
Located in the popular Rosehill Gardens area of Abbots Langley, this three-bedroom house offers a solid opportunity for buyers looking to personalise and update a well-positioned home. With a spacious layout and appealing footprint, the property lends itself to a range of improvement options, depending on individual taste and requirements.The generous reception room provides a flexible living space that could suit various configurations, including the potential for open-plan living. While the property could benefit from some updating, it offers a practical starting point for those interested in carrying out cosmetic or more extensive improvements.A standout feature of the home is its exceptionally large corner plot garden, offering an impressive amount of outdoor space. This provides excellent potential for landscaping, family use, or future development. Subject to the necessary planning consents, there may also be scope to extend the property to increase the living space.Offered with no upper chain, this home provides a straightforward route to ownership. Whether you're a family, professional couple, or investor looking for a property with room to grow, this is a promising opportunity in a well-regarded location.
Agent Notes
In Need Of Some Modernisation and Re-Decoration- Outstanding Corner Plot
kitchen
Front view
Garden
Viewing
Please contact us on 01923 262 666 if you wish to arrange a viewing appointment for this property, or require further information.
Energy Performance Certificate
Click here to view the Energy Efficiency Rating and Environmental Impact Rating for this property.
Disclaimer
Signature Estates - WD17 endeavour to maintain accurate depictions of properties in Virtual Tours, Floor Plans and descriptions, however, these are intended only as a guide and purchasers must satisfy themselves by personal inspection.
Features
- ** No Upper Chain **
- In Need Of Some Modernisation And Decoration
- Potential For Extension (SSTP)
- Large Unique Garden To Rear
- 3 Bedrooms
- Large Kitchen/Diner Area
- Easy Access to M25 And Local Train Station
- Walking Distance to Abbots Langley High Street
- A Rare Find !
Share
WorkWith Us
Moving home can be one of the most emotional and stress inducing transactions some of us will ever make. So why work with us? it is imperative that you choose the agent that is right for you, Signature Estates are renowned within our local communities and surrounding areas for providing a hands-on approach to each individual property transaction. Whilst we are small enough to care and provide each client with individual attention, we are large enough to ensure we provide the full range of property services that our clients deserve.

